Обяви За нас Контакти
Продава ПАРЦЕЛ
област Перник, с. Кошарево
Център
17 895.22 €
35 000 лв.

(51.13 €, 100 лв./m2)
Не се начислява ДДС
История на цената
Коригирана в 19:33 на 16 декември, 2025 год.
Обявата е посетена 66 пъти.
Площ:
350 m2
Регулация:
ДА
Ток:
ДА
Вода:
ДА

Описание на имота:


Представяме на Вашето внимание проект с одобрено РАЗРЕШИТЕЛНО ЗА СТРОЕЖ на две самостоятелни къщи, находящи се в центъра на с. Кошарево до къщата музей на кукерите, на 55 км. от гр.София, 30 км. от гр.Перник и на 10 км. от гр.Брезник.
Парцела е 700 кв.м. съответно всяка от къщите ще бъде с 350 кв.м. земя или 50 % идеална част от земята .
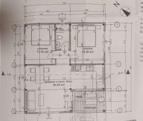
Къщите по горе на снимките може да видите квадратура и разпределенията на самите петна на къщите и тяхното разпределение, като помещения.
Имота е равен и много слънчев( южен), от към нова асфалтова улица, сред къщи с целогодишно обитаване на тихо и спокойно място.

Има Партиди за ток и електромери.
Може да почне да се строи веднага!

Цената включва парцела с готовия проект и разрешиелно за строеж за едната къща с площ от парцела 350 кв.м .
Изграждането на къщите може да бъде от инвеститора-строител по одобрения проект или да се закупи само парцела и Вие да си го построите сами, когато и с когото искате.
За повече информация на телефон 0877177791
Особености
Виза
За жил.строителство
За контакт:
0877177791
Агенция:
БИЛД ПРОПЪРТИ
08771 777 91
БИЛД ПРОПЪРТИ logo
Медал за прослужено време
В imot.bg от 2022 г.
galqrdo.imot.bg
Адрес:
област София, гр. София, Златен Рог 16 В
ИЗПРАТИ ЗАПИТВАНЕ
ИЗПРАТИ ЗАПИТВАНЕТО

Продава ПАРЦЕЛ
област Перник, с. Кошарево
Център
Обява: 1r176493019233863

17 895.22 €
35 000 лв.
История на цената
(51.13 €, 100 лв./m2)

Не се начислява ДДС
ЗАПАЗИ ОБЯВАТА

Местоположение: област Перник, с. Кошарево, Център